+49 (30) 286 07 840
·
info@lan-immobilien.de
·
Marburger Str. 14, 10789 Berlin
IMMOBILIEN BEWERTUNG

Ihre Geschäftsidee in bester frequentierter Lage – Ladenfläche am Rüdesheimer Platz!

14197 Berlin, Bürohaus zur Miete

Kontaktdaten

Objektdaten

  • Objekt ID
    1670
  • Objekttypen
    Büro/Praxis, Bürohaus
  • Adresse
    14197 Berlin
  • Etage
    EG
  • Etagen im Haus
    5
  • Bürofläche ca.
    67 m²
  • Büroteilfläche ca.
    67 m²
  • Heizungsart
    Fernwärme
  • Baujahr
    1914
  • Zustand
    gepflegt
  • Verfügbar ab
    SOFORT
  • Provisionspflichtig
    Ja
  • Mieter­provision (gewerblich)
    3 Nettokaltmieten zzgl. 19% Mwst
  • Preis
    auf Anfrage

Ausstattung / Merkmale

  • ✓ Altbau
  • ✓ Räume veränderbar
  • ✓ Steinboden
  • ✓ Teilunterkellert

Objekt­beschreibung

Beschreibung

In absoluter Spitzenlage am beliebten Rüdesheimer Platz befindet sich diese helle und gut sichtbare Ladeneinheit in einem Denkmalgeschützen und sehr gepflegten Wohn - und Geschäftshaus.

Die Fläche liegt im Erdgeschoss und profitiert von einer stark frequentierten Südseite – ideal für Einzelhandel, Showroom oder Dienstleistung.

Die große Schaufensterfront sorgt für viel Tageslicht und eine hervorragende Sichtbarkeit. Die Umgebung ist geprägt von einem charmanten Kiezflair, hoher Laufkundschaft und einem attraktiven Mix aus Einzelhandel, Büros und Wohnbebauung.

Wichtiger Hinweis: Gastronomiebetriebe (jeglicher Art) sind leider nicht zulässig.

Ausstattung

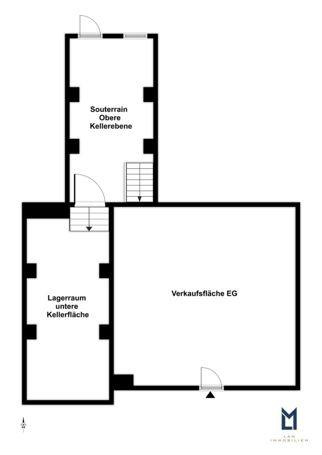
Die Einheit hat eine Verkaufsfläche von ca. 34 m² im Erdgeschoss.

Zusätzlich gibt es Lagerräume und ein WC mit ca. 33 m² Fläche.

Gesamtfläche inkl. nebenflächen: ca. 67 m².

Die sehr gepflegte Verkaufsfläche im Erdgeschoss ist großzügig geschnitten.

Highlights:

- Beste Lage am Rüdesheimer Platz

- Sonnige Südseite mit Schaufensterfront

- Repräsentatives Erscheinungsbild

- Hohe Sichtbarkeit und Laufkundschaft

- Vielseitige Nutzungsmöglichkeiten (keine Gastronomie)

Gern stellen wir Ihnen weitere Informationen zur Verfügung oder vereinbaren einen Besichtigungstermin.

**Teilen Sie uns bitte Ihre Branche | Geschäftsmodell mit, welche Sie in dieser Ladeneinheit eröffnen möchten.**

Sonstige Informationen

**Teilen Sie uns bitte Ihre Branche | Geschäftsmodell mit, welche Sie in dieser Gewerbeeinheit eröffnen möchten.**

Für Nachweis | Vermittlung berechnen wir dem Mieter drei Kaltmieten zzgl. MwSt., fällig bei Vertragsabschluss.

Für weitere Informationen und zur Vereinbarung eines Besichtigung, stehen wir Ihnen gerne zur Verfügung:

030 / 28 60 78 40

Lan Immobilien
Marburger Str.14
10707 Berlin

Alle Angaben sind ohne Gewähr und basieren ausschließlich auf Informationen, die uns von unserem Auftraggeber zur Verfügung gestellt wurden.
Wir übernehmen keine Gewähr für die Vollständigkeit, Richtigkeit und Aktualität der Angaben.
Irrtum und Zwischenverkauf vorbehalten.
Es gelten unsere allgemeinen Geschäftsbedingungen.

Lage

Der Rüdesheimer Platz zählt zu den charmantesten und beliebtesten Plätzen im Berliner Südwesten. Gelegen im Ortsteil Wilmersdorf (Bezirk Charlottenburg-Wilmersdorf), besticht die Umgebung durch eine gelungene Mischung aus urbanem Flair, historischer Architektur und gepflegtem Grün.

Die Ladeneinheit am Rüdesheimer Platz profitiert von einer hervorragenden Sichtlage direkt am Platz, der nicht nur bei Anwohnern, sondern auch bei Besuchern aus ganz Berlin geschätzt wird. Die unmittelbare Nachbarschaft ist geprägt von hochwertigen Altbauten, einem gehobenen Wohnumfeld sowie einem lebendigen Kiezleben mit zahlreichen kleinen Läden, Dienstleistern und kulturellen Angeboten.

Die Verkehrsanbindung ist ausgezeichnet: Die U-Bahn-Station "Rüdesheimer Platz" (U3) befindet sich in direkter Nähe und bietet eine schnelle Verbindung in die Berliner Innenstadt. Auch mehrere Buslinien sorgen für eine gute Erreichbarkeit. Der Standort ist sowohl für Laufkundschaft als auch für Stammkunden ideal erreichbar.

In fußläufiger Umgebung befinden sich Cafés, Supermärkte, Apotheken, Schulen und Grünanlagen wie der Volkspark Wilmersdorf. Der Rüdesheimer Platz selbst ist bekannt für seinen beliebten Wochenmarkt und den jährlich stattfindenden Rheingauer Weinbrunnen – ein Publikumsmagnet im Sommer.

Die dargestellte Position der Immobilie ist nur eine ungefähre Angabe.

Direktanfrage

* Pflichtangaben
 SSL-verschlüsselt
Immobiliendaten-Import und Darstellung für WordPress: WP-ImmoMakler®

Speyerer-Str.26, 10779 Berlin

Speyerer-Str.26, 10779 Berlin

Martin-Luther-Str.50, 10779 Berlin

Martin-Luther-Str.50, 10779 Berlin

 

Einheit

Adresse

Etage

Zimmer

Fläche

Grundriss

Exposé

WE 1

Martin-Luther-Str.50

1

2

ca. 58 m²

Vermietet

WE 2

Martin-Luther-Str.50

1

4

ca. 94 m²

Reserviert

WE 3

Martin-Luther-Str.50

2

2

ca. 58 m²

Vermietet

WE 4

Martin-Luther-Str.50

2

4

ca. 94 m²

Vermietet

WE 5

Martin-Luther-Str.50

3

2

ca. 58 m²

Vermietet

WE 6

Martin-Luther-Str.50

3

4

ca. 94 m²

Anfrage

WE 7

Martin-Luther-Str.50

4

2

ca. 58 m²

Anfrage

WE 8

Martin-Luther-Str.50

4

4

ca. 94 m²

Vermietet

WE 9

Martin-Luther-Str.50

5

2

ca. 58 m²

Anfrage

WE 10

Martin-Luther-Str.50

5

4

ca. 94 m²

Anfrage

WE 11

Martin-Luther-Str.50

6

2

ca. 58 m²

Reserviert

WE 12

Martin-Luther-Str.50

6

4

ca. 94 m²

Anfrage

WE 13

Martin-Luther-Str.50

7

2

ca. 58 m²

Anfrage

WE 14

Martin-Luther-Str.50

7

4

ca. 94 m²

Reserviert

 

Einheit

Adresse

Etage

Zimmer

Fläche

Grundriss

Exposé

WE 15

Speyerer-Str.26

EG

2

ca. 47 m²

Vermietet

WE 16

Speyerer-Str.26

1

2

ca. 70 m²

Vermietet

WE 17

Speyerer-Str.26

2

2

ca. 69 m²

Anfrage

WE 18

Speyerer-Str.26

3

2

ca. 70 m²

Anfrage

WE 19

Speyerer-Str.26

4

2

ca. 69 m²

Anfrage

WE 20

Speyerer-Str.26

5

2

ca. 70 m²

Anfrage

WE 21

Speyerer-Str.26

6

2

ca. 69 m²

Anfrage

WE 22

Speyerer-Str.26

7

2

ca. 70 m²

Reserviert

GRÜ-007

Grünauer Straße 6, 12557 Berlin
Bauprojekt für 4 Townhouses (WEG)
Wohnfläche: ca. 341 m² nach Wohnfläche mit Terrassen (WoFIV 2003)
Townhouses: 4
Zustand: Neubauprojekt (muss selbst realisiert werden)
Lage: Nachbebauung im Hof
Es wir die gültige Baugenehmigung verkauft um 4 Townhouses zu errichten.
Dadurch entstehen 4 separate Einheiten (Grundbücher).

Kaufpreis: 449.000,00€ Provision: 7,14 % Käuferprovision inkl. MwSt., verdient und fällig mit Beurkundung des notariellen Kaufvertrages.

GRÜ-006

Grünauer Straße 6, 12557 Berlin
Wohnfläche: ca. 107 m²
Zimmer: 4
Zustand: gepflegt
Lage: DG links
Bäder: 1
Vermietet: leerstehend
Wohngeld: 499,00€
Kaufpreis: 395.000,00€
Provision: 7,14 % Käuferprovision inkl. MwSt., verdient und fällig mit Beurkundung des notariellen Kaufvertrages.

GRÜ-005

Grünauer Straße 6, 12557 Berlin
Wohnfläche: ca. 83 m²
Zimmer: 2
Zustand: gepflegt
Lage: DG rechts
Bäder: 1
Vermietet: leerstehend
Mieteinahmen:
Wohngeld: 231,00€
Kaufpreis: 319.000,00€

GRÜ-004

Grünauer Straße 6, 12557 Berlin
Gewerbefläche: ca. 187 m²
Zustand: gepflegt
Lage: 2 OG
Vermietet: unbefristet
Mieteinahmen (Monat | Nettokalt): 1.437,00€
Wohngeld: 764,00€
Kaufpreis: 649.000,00€
Provision: 7,14 % Käuferprovision inkl. MwSt., verdient und fällig mit Beurkundung des notariellen Kaufvertrages.

GRÜ-003

Grünauer Straße 6, 12557 Berlin
Gewerbefläche:ca. 187 m²
Zustand: gepflegt
Lage: 1 OG
Vermietet: unbefristet
Mieteinahmen (Monat | Nettokalt): 3.125,00€
Wohngeld: 770,00€
Kaufpreis: 649.000,00€
Provision: 7,14 % Käuferprovision inkl. MwSt., verdient und fällig mit Beurkundung des notariellen Kaufvertrages.

GRUE-002

Grünauer Straße 6, 12557 Berlin
Gewerbefläche: ca. 71 m²
Zustand: gepflegt
Lage: Erdgeschoss
Vermietet: unbefristet
Mieteinahmen (Monat | Nettokalt): 525,00€
Wohngeld: 271,00€
Kaufpreis: 205.000,00€
Provision: 7,14 % Käuferprovision inkl. MwSt., verdient und fällig mit Beurkundung des notariellen Kaufvertrages.

GRÜ-001

Grünauer Straße 6, 12557 Berlin
Gewerbefläche: ca. 84 m²
Zustand: gepflegt
Lage: Erdgeschoss
Vermietet: leerstehend
Wohngeld: 346,00€
Kaufpreis: 279.000,00€
Provision: 7,14 % Käuferprovision inkl. MwSt., verdient und fällig mit Beurkundung des notariellen Kaufvertrages.

EinheitObjektartLageRäumeFlächeStatusKaufpreisGrundrissExposé 
GRÜ-001GewerbeEG ca. 84 m²leerstehend279.000,00 €

Verkauft 
GRÜ-002GewerbeEG3ca. 71 m²vermietet205.000,00 €

Verkauft 
GRÜ-003Gewerbe1. OG8ca. 187 m²vermietet649.000,00 €

Anfrage 
GRÜ-004Gewerbe2. OG8ca. 187 m²vermietet649.000,00 €

Anfrage 
GRÜ-005Wohnen3. OG2ca. 83 m²leerstehend319.000,00 €

Anfrage 
GRÜ-006Wohnen3. OG3ca. 107 m²leerstehend395.000,00 €

Anfrage 
GRÜ-007BauprojektHof4x Townhouseca. 341 m²baugenehmigt449.000,00 €

Anfrage 

VIK- 010

Viktoria Ufer 12, 13597 Berlin
Wohnfläche: ca. 67 m²
Zimmer: 4
Zustand: gepflegt
Lage: 3 OG
Bäder: 1
Vermietet: Leerstand
Wohngeld: 233,00€
Kaufpreis: 289.000,00€

VIK- 009

Jüdenstraße 31, 13597 Berlin
Wohnfläche: ca. 77 m²
Zimmer: 3
Zustand: renovierungsbedürftigt
Lage: 3 OG
Bäder: 1
Vermietet: leerstand
Wohngeld: 269,00€
Kaufpreis: 274.000,00€

VIK- 008

Viktoria Ufer 12, 13597 Berlin
Wohnfläche: ca. 80 m²
Zimmer: 4
Zustand: gepflegt
Lage: 2 OG
Bäder: 1
Vermietet: Leerstand
Wohngeld: 280,00€
Kaufpreis: 339.000,00€

VIK- 007

Jüdenstraße 31, 13597 Berlin
Wohnfläche: ca. 52 m²
Zimmer: 2
Zustand: renovierungsbedürftigt
Lage: 1 OG
Bäder: 1
Vermietet: seit 01.05.1994
Mieteinahmen (Monat | Nettokalt): 307,11€
Wohngeld: 181,00€
Kaufpreis: 125.000,00€

VIK- 006

Jüdenstraße 31, 13597 Berlin
Wohnfläche: ca. 33 m²
Zimmer: 1
Zustand: gepflegt
Lage: 1 OG
Bäder: 1
Vermietet: leerstand
Mieteinahmen (Monat | Nettokalt): 304,00€
Wohngeld: 117,00€
Kaufpreis: 129.000,00€

VIK- 005

Ritterstraße 9, 13597 Berlin
Wohnfläche: ca. 52 m²
Zimmer: 2
Zustand: renovierungsbedürftigt
Lage: 1 OG
Bäder: 1
Vermietet: seit 01.08.2007
Mieteinahmen (Monat | Nettokalt): 294,88€
Wohngeld: 182,00€
Kaufpreis: 129.000,00€

VIK- 004

Ritterstraße 9, 13597 Berlin
Wohnfläche: ca. 53 m²
Zimmer: 2
Zustand: gepflegt
Lage: 1 OG
Bäder: 1
Vermietet: leerstand
Wohngeld: 185€
Kaufpreis: 185.000,00€

VIK- 003

Viktoria Ufer 12, 13597 Berlin
Wohnfläche: ca. 80 m²
Zimmer: 4
Zustand: gepflegt
Lage: 1 OG
Bäder: 1
Vermietet: seit 01.12.2006
Mieteinahmen (Monat | Nettokalt): 461,05€
Wohngeld: 280,00€
Kaufpreis: 249.000,00€

VIK- 002

Jüdenstraße 31, 13597 Berlin
Gewerbefläche: ca. 135 m²
Zustand: gepflegt
Bäder: 1
Lage: Erdgeschoss
Vermietet: bis 31.03.2029
Mieteinahmen (Monat | Nettokalt): 1.540,00€
Wohngeld: 471,10€
Kaufpreis: 399.000,00€

VIK- 001

Viktoria Ufer 12, 13597 Berlin
Gewerbefläche: ca. 102 m²
Zustand: gepflegt
Bäder: 1
Lage: Erdgeschoss
Vermietet: seit 01.01.2010
Mieteinahmen (Monat | Nettokalt): 638,39€
Wohngeld: 357,70€
Kaufpreis: 209.000,00€

 

EinheitObjektartLageZimmerFlächeStatusKaufpreisGrundrissExposé 
VIK-001GewerbeEG ca. 102 m²vermietet209.000,00 €

Verkauft 
VIK-002GewerbeEG ca. 135 m²vermietet bis 31.03.2029399.000,00 €

Verkauft 
VIK-003Wohnen1. OG4ca. 80 m²vermietet249.000,00 €

Reserviert 
VIK-004Wohnen1. OG2ca. 53 m²leerstand185.000,00 €

Verkauft 
VIK-005Wohnen1. OG2ca. 52 m²vermietet129.000,00 €

Verkauft 
VIK-006Wohnen1. OG1ca. 33 m²leerstand129.000,00 €

Verkauft 
VIK-007Wohnen1. OG2ca. 52 m²vermietet125.000,00 €

Verkauft 
VIK-008Wohnen2. OG4ca. 80 m²leerstand339.000,00 €

Verkauft 
VIK-009Wohnen3.OG3ca. 77 m²leerstand274.000,00 €

Verkauft 
VIK-010Wohnen3.OG3ca. 67 m²leerstand289.000,00 €

Verkauft