+49 (30) 286 07 840
·
info@lan-immobilien.de
·
Marburger Str. 14, 10789 Berlin
IMMOBILIEN BEWERTUNG

Baugenehmigte Nachverdichtung: 4 Townhäuser / Wohneigentums Paket in Köpenick!

12557 Berlin, Reihenhaus zum Kauf

Kontaktdaten

Objektdaten

  • Objekt ID
    1747
  • Objekttypen
    Haus, Reihenhaus
  • Adresse
    12557 Berlin
  • Wohnfläche ca.
    340 m²
  • Grund­stück ca.
    520 m²
  • Zimmer
    16
  • Zustand
    projektiert
  • Provisionspflichtig
    Ja
  • Käufer­provision
    21.348,60EUR
    7,14 % Käuferprovision inkl. MwSt., verdient und fällig mit Beurkundung des notariellen Kaufvertrages.
  • Kaufpreis
    299.000 EUR

Objekt­beschreibung

Beschreibung

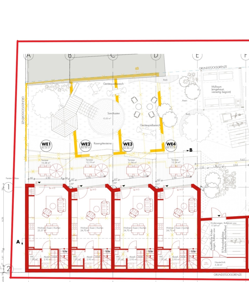
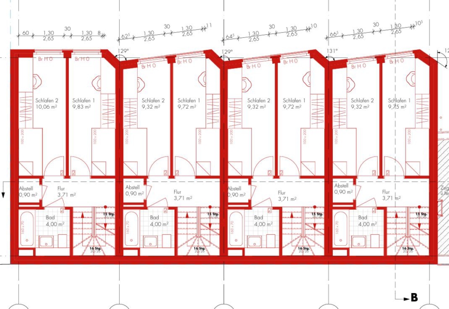
Zum Verkauf steht ein attraktives Bauvorhaben im gefragten Berlin-Köpenick. Für das Grundstück liegt eine rechtskräftige Baugenehmigung zur Errichtung von vier modernen Townhouses mit einer gesamten Wohnfläche von ca. 340 m² vor. Die Umsetzung des Bauprojekts erfolgt durch den Käufer in Eigenregie. Veräußert werden die erteilte Baugenehmigung sowie die zugehörigen Wohneigentumsanteile (Grundbücher) der geplanten Townhouses.

Ausstattung

Das hier angebotene Bauvorhaben ist eine Nachverdichtung im beliebten Berlin-Köpenick.
Eine gültige Baugenehmigung für 4 Townhäuser mit insgesamt ca. 340 m² Nettowohnfläche liegt vor.

TH 1: ca. 86,04 m² - 4 Zimmer
TH 2: ca. 84,99 m² - 4 Zimmer
TH 3: ca. 84,86 m² - 4 Zimmer
TH 4: ca. 84,93 m² - 4 Zimmer

Der Bau der vier Townhäuser muss vom Käufer selbst organisiert und umgesetzt werden. Im Angebot sind die gültige Baugenehmigung sowie die Eigentumsanteile für alle vier Häuser als Paket enthalten (jeweils in separaten Grundbüchern).

Sonstige Informationen

Für weitere Fragen stehen wir Ihnen jederzeit zur Verfügung!

Ein ausführliches Exposé zum Objekt erhalten Sie auf schriftliche Anfrage.

Wir bitten Sie das Kontaktformular vollständig auszufüllen!

Lan Immobilien
Marburger Str.14
D-10789 Berlin

Mail: Info@lan-immobilien.de
Web: www.lan-immobilien.de

Alle Angaben in diesem Exposé beruhen auf Informationen, die uns vom Auftraggeber zur Verfügung gestellt wurden.
Eine Gewähr für die Vollständigkeit, Richtigkeit und Aktualität dieser Angaben wird nicht übernommen.
Irrtum, Auslassungen sowie Zwischenverkauf bzw. Zwischenvermietung bleiben vorbehalten.
Maßgeblich sind ausschließlich die im notariellen Kaufvertrag bzw. Mietvertrag getroffenen Vereinbarungen.
Es gelten unsere Allgemeinen Geschäftsbedingungen.

Lage

Die Immobilie ist ein multifunktionales Anwesen, das Gewerbeeinheiten, Wohnungen und ein laufendes Bauprojekt umfasst. Diese Vielfalt macht sie zu einem aufregenden Zentrum für Geschäftsaktivitäten, Wohnmöglichkeiten und zukünftige Entwicklungen. Mit ihrer zentralen Lage und ihrem Potenzial zur weiteren Entwicklung ist die Grünauer Straße ein begehrtes Ziel für Investoren und Bewohner gleichermaßen.

Die dargestellte Position der Immobilie ist nur eine ungefähre Angabe.

Direktanfrage

* Pflichtangaben
 SSL-verschlüsselt
Immobiliendaten-Import und Darstellung für WordPress: WP-ImmoMakler®

Speyerer-Str.26, 10779 Berlin

Speyerer-Str.26, 10779 Berlin

Martin-Luther-Str.50, 10779 Berlin

Martin-Luther-Str.50, 10779 Berlin

 

Einheit

Adresse

Etage

Zimmer

Fläche

Grundriss

Exposé

WE 1

Martin-Luther-Str.50

1

2

ca. 58 m²

Vermietet

WE 2

Martin-Luther-Str.50

1

4

ca. 94 m²

Reserviert

WE 3

Martin-Luther-Str.50

2

2

ca. 58 m²

Vermietet

WE 4

Martin-Luther-Str.50

2

4

ca. 94 m²

Vermietet

WE 5

Martin-Luther-Str.50

3

2

ca. 58 m²

Vermietet

WE 6

Martin-Luther-Str.50

3

4

ca. 94 m²

Anfrage

WE 7

Martin-Luther-Str.50

4

2

ca. 58 m²

Vermietet

WE 8

Martin-Luther-Str.50

4

4

ca. 94 m²

Vermietet

WE 9

Martin-Luther-Str.50

5

2

ca. 58 m²

Vermietet

WE 10

Martin-Luther-Str.50

5

4

ca. 94 m²

Anfrage

WE 11

Martin-Luther-Str.50

6

2

ca. 58 m²

Reserviert

WE 12

Martin-Luther-Str.50

6

4

ca. 94 m²

Anfrage

WE 13

Martin-Luther-Str.50

7

2

ca. 58 m²

Anfrage

WE 14

Martin-Luther-Str.50

7

4

ca. 94 m²

Vermietet

 

Einheit

Adresse

Etage

Zimmer

Fläche

Grundriss

Exposé

WE 15

Speyerer-Str.26

EG

2

ca. 47 m²

Vermietet

WE 16

Speyerer-Str.26

1

2

ca. 70 m²

Vermietet

WE 17

Speyerer-Str.26

2

2

ca. 69 m²

Anfrage

WE 18

Speyerer-Str.26

3

2

ca. 70 m²

Anfrage

WE 19

Speyerer-Str.26

4

2

ca. 69 m²

Anfrage

WE 20

Speyerer-Str.26

5

2

ca. 70 m²

Anfrage

WE 21

Speyerer-Str.26

6

2

ca. 69 m²

Anfrage

WE 22

Speyerer-Str.26

7

2

ca. 70 m²

Reserviert

GRÜ-007

Grünauer Straße 6, 12557 Berlin
Bauprojekt für 4 Townhouses (WEG)
Wohnfläche: ca. 341 m² nach Wohnfläche mit Terrassen (WoFIV 2003)
Townhouses: 4
Zustand: Neubauprojekt (muss selbst realisiert werden)
Lage: Nachbebauung im Hof
Es wir die gültige Baugenehmigung verkauft um 4 Townhouses zu errichten.
Dadurch entstehen 4 separate Einheiten (Grundbücher).

Kaufpreis: 449.000,00€ Provision: 7,14 % Käuferprovision inkl. MwSt., verdient und fällig mit Beurkundung des notariellen Kaufvertrages.

GRÜ-006

Grünauer Straße 6, 12557 Berlin
Wohnfläche: ca. 107 m²
Zimmer: 4
Zustand: gepflegt
Lage: DG links
Bäder: 1
Vermietet: leerstehend
Wohngeld: 499,00€
Kaufpreis: 395.000,00€
Provision: 7,14 % Käuferprovision inkl. MwSt., verdient und fällig mit Beurkundung des notariellen Kaufvertrages.

GRÜ-005

Grünauer Straße 6, 12557 Berlin
Wohnfläche: ca. 83 m²
Zimmer: 2
Zustand: gepflegt
Lage: DG rechts
Bäder: 1
Vermietet: leerstehend
Mieteinahmen:
Wohngeld: 231,00€
Kaufpreis: 319.000,00€

GRÜ-004

Grünauer Straße 6, 12557 Berlin
Gewerbefläche: ca. 187 m²
Zustand: gepflegt
Lage: 2 OG
Vermietet: unbefristet
Mieteinahmen (Monat | Nettokalt): 1.437,00€
Wohngeld: 764,00€
Kaufpreis: 649.000,00€
Provision: 7,14 % Käuferprovision inkl. MwSt., verdient und fällig mit Beurkundung des notariellen Kaufvertrages.

GRÜ-003

Grünauer Straße 6, 12557 Berlin
Gewerbefläche:ca. 187 m²
Zustand: gepflegt
Lage: 1 OG
Vermietet: unbefristet
Mieteinahmen (Monat | Nettokalt): 3.125,00€
Wohngeld: 770,00€
Kaufpreis: 649.000,00€
Provision: 7,14 % Käuferprovision inkl. MwSt., verdient und fällig mit Beurkundung des notariellen Kaufvertrages.

GRUE-002

Grünauer Straße 6, 12557 Berlin
Gewerbefläche: ca. 71 m²
Zustand: gepflegt
Lage: Erdgeschoss
Vermietet: unbefristet
Mieteinahmen (Monat | Nettokalt): 525,00€
Wohngeld: 271,00€
Kaufpreis: 205.000,00€
Provision: 7,14 % Käuferprovision inkl. MwSt., verdient und fällig mit Beurkundung des notariellen Kaufvertrages.

GRÜ-001

Grünauer Straße 6, 12557 Berlin
Gewerbefläche: ca. 84 m²
Zustand: gepflegt
Lage: Erdgeschoss
Vermietet: leerstehend
Wohngeld: 346,00€
Kaufpreis: 279.000,00€
Provision: 7,14 % Käuferprovision inkl. MwSt., verdient und fällig mit Beurkundung des notariellen Kaufvertrages.

EinheitObjektartLageRäumeFlächeStatusKaufpreisGrundrissExposé 
GRÜ-001GewerbeEG ca. 84 m²leerstehend279.000,00 €

Verkauft 
GRÜ-002GewerbeEG3ca. 71 m²vermietet205.000,00 €

Verkauft 
GRÜ-003Gewerbe1. OG8ca. 187 m²vermietet649.000,00 €

Anfrage 
GRÜ-004Gewerbe2. OG8ca. 187 m²vermietet649.000,00 €

Anfrage 
GRÜ-005Wohnen3. OG2ca. 83 m²leerstehend319.000,00 €

Anfrage 
GRÜ-006Wohnen3. OG3ca. 107 m²leerstehend395.000,00 €

Anfrage 
GRÜ-007BauprojektHof4x Townhouseca. 341 m²baugenehmigt449.000,00 €

Anfrage 

VIK- 010

Viktoria Ufer 12, 13597 Berlin
Wohnfläche: ca. 67 m²
Zimmer: 4
Zustand: gepflegt
Lage: 3 OG
Bäder: 1
Vermietet: Leerstand
Wohngeld: 233,00€
Kaufpreis: 289.000,00€

VIK- 009

Jüdenstraße 31, 13597 Berlin
Wohnfläche: ca. 77 m²
Zimmer: 3
Zustand: renovierungsbedürftigt
Lage: 3 OG
Bäder: 1
Vermietet: leerstand
Wohngeld: 269,00€
Kaufpreis: 274.000,00€

VIK- 008

Viktoria Ufer 12, 13597 Berlin
Wohnfläche: ca. 80 m²
Zimmer: 4
Zustand: gepflegt
Lage: 2 OG
Bäder: 1
Vermietet: Leerstand
Wohngeld: 280,00€
Kaufpreis: 339.000,00€

VIK- 007

Jüdenstraße 31, 13597 Berlin
Wohnfläche: ca. 52 m²
Zimmer: 2
Zustand: renovierungsbedürftigt
Lage: 1 OG
Bäder: 1
Vermietet: seit 01.05.1994
Mieteinahmen (Monat | Nettokalt): 307,11€
Wohngeld: 181,00€
Kaufpreis: 125.000,00€

VIK- 006

Jüdenstraße 31, 13597 Berlin
Wohnfläche: ca. 33 m²
Zimmer: 1
Zustand: gepflegt
Lage: 1 OG
Bäder: 1
Vermietet: leerstand
Mieteinahmen (Monat | Nettokalt): 304,00€
Wohngeld: 117,00€
Kaufpreis: 129.000,00€

VIK- 005

Ritterstraße 9, 13597 Berlin
Wohnfläche: ca. 52 m²
Zimmer: 2
Zustand: renovierungsbedürftigt
Lage: 1 OG
Bäder: 1
Vermietet: seit 01.08.2007
Mieteinahmen (Monat | Nettokalt): 294,88€
Wohngeld: 182,00€
Kaufpreis: 129.000,00€

VIK- 004

Ritterstraße 9, 13597 Berlin
Wohnfläche: ca. 53 m²
Zimmer: 2
Zustand: gepflegt
Lage: 1 OG
Bäder: 1
Vermietet: leerstand
Wohngeld: 185€
Kaufpreis: 185.000,00€

VIK- 003

Viktoria Ufer 12, 13597 Berlin
Wohnfläche: ca. 80 m²
Zimmer: 4
Zustand: gepflegt
Lage: 1 OG
Bäder: 1
Vermietet: seit 01.12.2006
Mieteinahmen (Monat | Nettokalt): 461,05€
Wohngeld: 280,00€
Kaufpreis: 249.000,00€

VIK- 002

Jüdenstraße 31, 13597 Berlin
Gewerbefläche: ca. 135 m²
Zustand: gepflegt
Bäder: 1
Lage: Erdgeschoss
Vermietet: bis 31.03.2029
Mieteinahmen (Monat | Nettokalt): 1.540,00€
Wohngeld: 471,10€
Kaufpreis: 399.000,00€

VIK- 001

Viktoria Ufer 12, 13597 Berlin
Gewerbefläche: ca. 102 m²
Zustand: gepflegt
Bäder: 1
Lage: Erdgeschoss
Vermietet: seit 01.01.2010
Mieteinahmen (Monat | Nettokalt): 638,39€
Wohngeld: 357,70€
Kaufpreis: 209.000,00€

 

EinheitObjektartLageZimmerFlächeStatusKaufpreisGrundrissExposé 
VIK-001GewerbeEG ca. 102 m²vermietet209.000,00 €

Verkauft 
VIK-002GewerbeEG ca. 135 m²vermietet bis 31.03.2029399.000,00 €

Verkauft 
VIK-003Wohnen1. OG4ca. 80 m²vermietet249.000,00 €

Reserviert 
VIK-004Wohnen1. OG2ca. 53 m²leerstand185.000,00 €

Verkauft 
VIK-005Wohnen1. OG2ca. 52 m²vermietet129.000,00 €

Verkauft 
VIK-006Wohnen1. OG1ca. 33 m²leerstand129.000,00 €

Verkauft 
VIK-007Wohnen1. OG2ca. 52 m²vermietet125.000,00 €

Verkauft 
VIK-008Wohnen2. OG4ca. 80 m²leerstand339.000,00 €

Verkauft 
VIK-009Wohnen3.OG3ca. 77 m²leerstand274.000,00 €

Verkauft 
VIK-010Wohnen3.OG3ca. 67 m²leerstand289.000,00 €

Verkauft