+49 (30) 286 07 840
·
info@lan-immobilien.de
·
Marburger Str. 14, 10789 Berlin
IMMOBILIEN BEWERTUNG

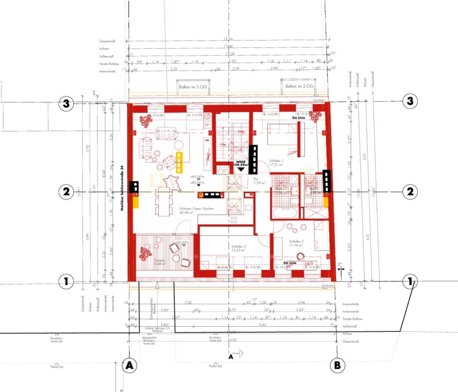
Dachgeschossrohling (Spitzboden/Kriechboden)! Baugenehmigt zum Ausbau in super Lage von Adlershof!

12489 Berlin, Dachgeschosswohnung zum Kauf

Kontaktdaten

Objektdaten

  • Objekt ID
    1694
  • Objekttypen
    Dachgeschosswohnung, Wohnung
  • Adresse
    12489 Berlin
  • Etage
    4
  • Etagen im Haus
    4
  • Wohnfläche ca.
    110 m²
  • Zimmer
    4
  • Wesentlicher Energieträger
    Gas
  • Baujahr
    1903
  • Zustand
    Rohbau
  • Provisionspflichtig
    Ja
  • Käufer­provision
    3.177,30EUR
    3,57 % Käuferprovision inkl. MwSt., verdient und fällig mit Beurkundung des notariellen Kaufvertrages. Der Immobilienmakler hat einen provisionspflichtigen Maklervertrag mit dem Verkäufer in gleicher Höhe abgeschlossen.
  • Hausgeld
    500 EUR
  • Kaufpreis
    89.000 EUR

Ausstattung / Merkmale

  • ✓ Altbau
  • ✓ Flachdach

Energieausweis

  • Energieausweistyp
    Bedarfs­ausweis
  • Ausstellungsdatum
    30.08.2019
  • Gültig bis
    29.08.2029
  • Baujahr lt. Energieausweis
    1997
  • Wesentlicher Energieträger
    Gas
  • Endenergie­bedarf
    140,90 kWh/(m²·a)
  • Energie­effizienz­klasse
    E
0 25 50 75 100 125 150 175 200 225 250+ H G F E D C B A A+ H G F E D C B A A+ Endenergiebedarf 140,90 kWh/(m²·a)

Objekt­beschreibung

Beschreibung

Das gepflegte Mehrfamilienhaus aus dem Jahr 1903 besteht aus einem reinem Vorderhaus.

Für ein ausführliches Exposé füllen Sie bitte das Kontaktformular vollständig aus.

Ausstattung

Auf einer Wohnfläche mit Terrassen (WoFIV 2003) nach Baugenehmigung von ca. 110 m² bietet die Einheit viele Möglichkeiten der individuellen Gestaltung.

Nach der genehmigten Planung hat die Einheit vier Zimmer und eine Terrasse.

Alle relevanten Unterlagen (gültige Baugenehmigung) liegen vor, sodass kurzfristig mit dem Ausbau begonnen werden kann.

Der Ausbau wird nicht durch den Verkäufer durchgeführt.

Es handelt sich hierbei um einen kompletten Abriss und Neuaufbau, vom
aktuellen Dachgeschoss (Spitzboden/Kriechboden aktuelle Deckenhöhe ca. 1 m).

Sonstige Informationen

Für weitere Fragen stehen wir Ihnen jederzeit zur Verfügung.

Ein ausführliches Exposé zum Objekt erhalten Sie auf schriftliche Anfrage.

Wir bitten Sie das Kontaktformular vollständig auszufüllen!

Lan Immobilien
Marburger Str.14
D-10789 Berlin

Mail: Info@lan-immobilien.de
Web: www.lan-immobilien.de

Alle Angaben sind ohne Gewähr und basieren ausschließlich auf Informationen, die uns von unserem Auftraggeber zur Verfügung gestellt wurden. Wir übernehmen keine Gewähr für die Vollständigkeit, Richtigkeit und Aktualität der Angaben. Es gelten unsere allgemeinen Geschäftsbedingungen.

Lage

Der hier angebotene Dachgeschossrohling, befindet sich in einem ruhigen und grünen Wohngebiet im Stadtteil Berlin-Adlershof. Diese Lage bietet eine hervorragende Anbindung an den öffentlichen Nahverkehr, sodass Sie schnell ins Stadtzentrum gelangen können. In der Nähe finden Sie zahlreiche Einkaufsmöglichkeiten, Cafés und Restaurants, die für eine angenehme Lebensqualität sorgen. Zudem sind Parks und Freizeitmöglichkeiten in der Umgebung vorhanden, die zu entspannenden Spaziergängen und Aktivitäten im Freien einladen. Ideal für Familien und Berufstätige, die eine harmonische Wohnatmosphäre suchen!

Die dargestellte Position der Immobilie ist nur eine ungefähre Angabe.

Direktanfrage

* Pflichtangaben
 SSL-verschlüsselt
Immobiliendaten-Import und Darstellung für WordPress: WP-ImmoMakler®

Speyerer-Str.26, 10779 Berlin

Speyerer-Str.26, 10779 Berlin

Martin-Luther-Str.50, 10779 Berlin

Martin-Luther-Str.50, 10779 Berlin

 

Einheit

Adresse

Etage

Zimmer

Fläche

Grundriss

Exposé

WE 1

Martin-Luther-Str.50

1

2

ca. 58 m²

Vermietet

WE 2

Martin-Luther-Str.50

1

4

ca. 94 m²

Reserviert

WE 3

Martin-Luther-Str.50

2

2

ca. 58 m²

Vermietet

WE 4

Martin-Luther-Str.50

2

4

ca. 94 m²

Vermietet

WE 5

Martin-Luther-Str.50

3

2

ca. 58 m²

Vermietet

WE 6

Martin-Luther-Str.50

3

4

ca. 94 m²

Anfrage

WE 7

Martin-Luther-Str.50

4

2

ca. 58 m²

Anfrage

WE 8

Martin-Luther-Str.50

4

4

ca. 94 m²

Vermietet

WE 9

Martin-Luther-Str.50

5

2

ca. 58 m²

Anfrage

WE 10

Martin-Luther-Str.50

5

4

ca. 94 m²

Anfrage

WE 11

Martin-Luther-Str.50

6

2

ca. 58 m²

Reserviert

WE 12

Martin-Luther-Str.50

6

4

ca. 94 m²

Anfrage

WE 13

Martin-Luther-Str.50

7

2

ca. 58 m²

Anfrage

WE 14

Martin-Luther-Str.50

7

4

ca. 94 m²

Reserviert

 

Einheit

Adresse

Etage

Zimmer

Fläche

Grundriss

Exposé

WE 15

Speyerer-Str.26

EG

2

ca. 47 m²

Vermietet

WE 16

Speyerer-Str.26

1

2

ca. 70 m²

Vermietet

WE 17

Speyerer-Str.26

2

2

ca. 69 m²

Anfrage

WE 18

Speyerer-Str.26

3

2

ca. 70 m²

Anfrage

WE 19

Speyerer-Str.26

4

2

ca. 69 m²

Anfrage

WE 20

Speyerer-Str.26

5

2

ca. 70 m²

Anfrage

WE 21

Speyerer-Str.26

6

2

ca. 69 m²

Anfrage

WE 22

Speyerer-Str.26

7

2

ca. 70 m²

Reserviert

GRÜ-007

Grünauer Straße 6, 12557 Berlin
Bauprojekt für 4 Townhouses (WEG)
Wohnfläche: ca. 341 m² nach Wohnfläche mit Terrassen (WoFIV 2003)
Townhouses: 4
Zustand: Neubauprojekt (muss selbst realisiert werden)
Lage: Nachbebauung im Hof
Es wir die gültige Baugenehmigung verkauft um 4 Townhouses zu errichten.
Dadurch entstehen 4 separate Einheiten (Grundbücher).

Kaufpreis: 449.000,00€ Provision: 7,14 % Käuferprovision inkl. MwSt., verdient und fällig mit Beurkundung des notariellen Kaufvertrages.

GRÜ-006

Grünauer Straße 6, 12557 Berlin
Wohnfläche: ca. 107 m²
Zimmer: 4
Zustand: gepflegt
Lage: DG links
Bäder: 1
Vermietet: leerstehend
Wohngeld: 499,00€
Kaufpreis: 395.000,00€
Provision: 7,14 % Käuferprovision inkl. MwSt., verdient und fällig mit Beurkundung des notariellen Kaufvertrages.

GRÜ-005

Grünauer Straße 6, 12557 Berlin
Wohnfläche: ca. 83 m²
Zimmer: 2
Zustand: gepflegt
Lage: DG rechts
Bäder: 1
Vermietet: leerstehend
Mieteinahmen:
Wohngeld: 231,00€
Kaufpreis: 319.000,00€

GRÜ-004

Grünauer Straße 6, 12557 Berlin
Gewerbefläche: ca. 187 m²
Zustand: gepflegt
Lage: 2 OG
Vermietet: unbefristet
Mieteinahmen (Monat | Nettokalt): 1.437,00€
Wohngeld: 764,00€
Kaufpreis: 649.000,00€
Provision: 7,14 % Käuferprovision inkl. MwSt., verdient und fällig mit Beurkundung des notariellen Kaufvertrages.

GRÜ-003

Grünauer Straße 6, 12557 Berlin
Gewerbefläche:ca. 187 m²
Zustand: gepflegt
Lage: 1 OG
Vermietet: unbefristet
Mieteinahmen (Monat | Nettokalt): 3.125,00€
Wohngeld: 770,00€
Kaufpreis: 649.000,00€
Provision: 7,14 % Käuferprovision inkl. MwSt., verdient und fällig mit Beurkundung des notariellen Kaufvertrages.

GRUE-002

Grünauer Straße 6, 12557 Berlin
Gewerbefläche: ca. 71 m²
Zustand: gepflegt
Lage: Erdgeschoss
Vermietet: unbefristet
Mieteinahmen (Monat | Nettokalt): 525,00€
Wohngeld: 271,00€
Kaufpreis: 205.000,00€
Provision: 7,14 % Käuferprovision inkl. MwSt., verdient und fällig mit Beurkundung des notariellen Kaufvertrages.

GRÜ-001

Grünauer Straße 6, 12557 Berlin
Gewerbefläche: ca. 84 m²
Zustand: gepflegt
Lage: Erdgeschoss
Vermietet: leerstehend
Wohngeld: 346,00€
Kaufpreis: 279.000,00€
Provision: 7,14 % Käuferprovision inkl. MwSt., verdient und fällig mit Beurkundung des notariellen Kaufvertrages.

EinheitObjektartLageRäumeFlächeStatusKaufpreisGrundrissExposé 
GRÜ-001GewerbeEG ca. 84 m²leerstehend279.000,00 €

Verkauft 
GRÜ-002GewerbeEG3ca. 71 m²vermietet205.000,00 €

Verkauft 
GRÜ-003Gewerbe1. OG8ca. 187 m²vermietet649.000,00 €

Anfrage 
GRÜ-004Gewerbe2. OG8ca. 187 m²vermietet649.000,00 €

Anfrage 
GRÜ-005Wohnen3. OG2ca. 83 m²leerstehend319.000,00 €

Anfrage 
GRÜ-006Wohnen3. OG3ca. 107 m²leerstehend395.000,00 €

Anfrage 
GRÜ-007BauprojektHof4x Townhouseca. 341 m²baugenehmigt449.000,00 €

Anfrage 

VIK- 010

Viktoria Ufer 12, 13597 Berlin
Wohnfläche: ca. 67 m²
Zimmer: 4
Zustand: gepflegt
Lage: 3 OG
Bäder: 1
Vermietet: Leerstand
Wohngeld: 233,00€
Kaufpreis: 289.000,00€

VIK- 009

Jüdenstraße 31, 13597 Berlin
Wohnfläche: ca. 77 m²
Zimmer: 3
Zustand: renovierungsbedürftigt
Lage: 3 OG
Bäder: 1
Vermietet: leerstand
Wohngeld: 269,00€
Kaufpreis: 274.000,00€

VIK- 008

Viktoria Ufer 12, 13597 Berlin
Wohnfläche: ca. 80 m²
Zimmer: 4
Zustand: gepflegt
Lage: 2 OG
Bäder: 1
Vermietet: Leerstand
Wohngeld: 280,00€
Kaufpreis: 339.000,00€

VIK- 007

Jüdenstraße 31, 13597 Berlin
Wohnfläche: ca. 52 m²
Zimmer: 2
Zustand: renovierungsbedürftigt
Lage: 1 OG
Bäder: 1
Vermietet: seit 01.05.1994
Mieteinahmen (Monat | Nettokalt): 307,11€
Wohngeld: 181,00€
Kaufpreis: 125.000,00€

VIK- 006

Jüdenstraße 31, 13597 Berlin
Wohnfläche: ca. 33 m²
Zimmer: 1
Zustand: gepflegt
Lage: 1 OG
Bäder: 1
Vermietet: leerstand
Mieteinahmen (Monat | Nettokalt): 304,00€
Wohngeld: 117,00€
Kaufpreis: 129.000,00€

VIK- 005

Ritterstraße 9, 13597 Berlin
Wohnfläche: ca. 52 m²
Zimmer: 2
Zustand: renovierungsbedürftigt
Lage: 1 OG
Bäder: 1
Vermietet: seit 01.08.2007
Mieteinahmen (Monat | Nettokalt): 294,88€
Wohngeld: 182,00€
Kaufpreis: 129.000,00€

VIK- 004

Ritterstraße 9, 13597 Berlin
Wohnfläche: ca. 53 m²
Zimmer: 2
Zustand: gepflegt
Lage: 1 OG
Bäder: 1
Vermietet: leerstand
Wohngeld: 185€
Kaufpreis: 185.000,00€

VIK- 003

Viktoria Ufer 12, 13597 Berlin
Wohnfläche: ca. 80 m²
Zimmer: 4
Zustand: gepflegt
Lage: 1 OG
Bäder: 1
Vermietet: seit 01.12.2006
Mieteinahmen (Monat | Nettokalt): 461,05€
Wohngeld: 280,00€
Kaufpreis: 249.000,00€

VIK- 002

Jüdenstraße 31, 13597 Berlin
Gewerbefläche: ca. 135 m²
Zustand: gepflegt
Bäder: 1
Lage: Erdgeschoss
Vermietet: bis 31.03.2029
Mieteinahmen (Monat | Nettokalt): 1.540,00€
Wohngeld: 471,10€
Kaufpreis: 399.000,00€

VIK- 001

Viktoria Ufer 12, 13597 Berlin
Gewerbefläche: ca. 102 m²
Zustand: gepflegt
Bäder: 1
Lage: Erdgeschoss
Vermietet: seit 01.01.2010
Mieteinahmen (Monat | Nettokalt): 638,39€
Wohngeld: 357,70€
Kaufpreis: 209.000,00€

 

EinheitObjektartLageZimmerFlächeStatusKaufpreisGrundrissExposé 
VIK-001GewerbeEG ca. 102 m²vermietet209.000,00 €

Verkauft 
VIK-002GewerbeEG ca. 135 m²vermietet bis 31.03.2029399.000,00 €

Verkauft 
VIK-003Wohnen1. OG4ca. 80 m²vermietet249.000,00 €

Reserviert 
VIK-004Wohnen1. OG2ca. 53 m²leerstand185.000,00 €

Verkauft 
VIK-005Wohnen1. OG2ca. 52 m²vermietet129.000,00 €

Verkauft 
VIK-006Wohnen1. OG1ca. 33 m²leerstand129.000,00 €

Verkauft 
VIK-007Wohnen1. OG2ca. 52 m²vermietet125.000,00 €

Verkauft 
VIK-008Wohnen2. OG4ca. 80 m²leerstand339.000,00 €

Verkauft 
VIK-009Wohnen3.OG3ca. 77 m²leerstand274.000,00 €

Verkauft 
VIK-010Wohnen3.OG3ca. 67 m²leerstand289.000,00 €

Verkauft