Das gepflegte Mehrfamilienhaus in markanter Ecklage ist ein modernisierter Altbau aus dem Jahr 1900. Die angebotene Wohneinheit befindet sich auf dem 1. Obergeschoss.
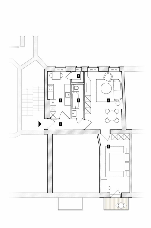
Diese charmante Wohnung überzeugt mit zwei gut geschnittenen Zimmern und einem großzügigen Eingangsbereich, der ein angenehmes Raumgefühl vermittelt. Ein Zimmer ist derzeit als praktisches Durchgangszimmer gestaltet und eröffnet vielfältige Nutzungsmöglichkeiten.
Mit überschaubarem Aufwand besteht die Möglichkeit, den Flur auf Kosten des Käufers zu verlängern und so zwei vollständig separate Zimmer zu schaffen – ideal für Paare, kleine Familien oder eine attraktive Vermietung.
Darüber hinaus sehen wir Potenzial, die Küche in das aktuelle Durchgangszimmer zu verlegen. Dadurch ließe sich ein zusätzliches, vollwertiges Zimmer realisieren und die Wohnung funktional wie auch wertsteigernd neu strukturieren.
Eine Immobilie mit Entwicklungsspielraum und spannenden Gestaltungsmöglichkeiten – perfekt für Eigennutzer mit Vision oder Kapitalanleger.
Weitere Ausstattungsmerkmale:
-Schöner gepflegter Dielenfußboden
-Küche
-Gefliestes Bad mit Wanne und Tageslichtfenster
-Kunststofffenster
-Geräumiger Flur
-Hohe Stuckdecken (ca. 3,10 m)
-Balkon
-Altbaudetails / Deckenstuck
Für ein ausführliches Exposé füllen Sie bitte das Kontaktformular vollständig aus.
Lan Immobilien
Marburger Str.14
D-10789 Berlin
Office.: +49 30 28 60 78 40
Web: www.lan-immobilien.de
Alle Angaben sind ohne Gewähr und basieren ausschließlich auf Informationen, die uns von unserem Auftraggeber zur Verfügung gestellt wurden.
Wir übernehmen keine Gewähr für die Vollständigkeit, Richtigkeit und Aktualität der Angaben.
Irrtum und Zwischenverkauf vorbehalten.
Es gelten unsere allgemeinen Geschäftsbedingungen.
Die Immobilie liegt in ruhiger, grüner Wohnlage im beliebten Berliner Ortsteil Niederschönhausen (Pankow). Die Charlottenstraße bietet eine angenehme Nachbarschaft mit gepflegten Alt- und Neubauten – ideal für Familien, Paare und Ruhesuchende.
Einkaufsmöglichkeiten, Cafés, Schulen, Kitas und Ärzte sind fußläufig erreichbar. Die Verkehrsanbindung ist hervorragend: Buslinien (z. B. M1, 107) sowie die S-Bahnhöfe Pankow und Schönholz bieten eine schnelle Verbindung in die Berliner Innenstadt.
Die dargestellte Position der Immobilie ist nur eine ungefähre Angabe.